
4ウォークインクローゼット
ご夫婦の衣類だけでなく家族のものの収納に便利なウォークインクローゼット。
5バルコニー
主寝室から出入りできる大きなバルコニー。
スマホサイトはこちら
モデルハウス
外観完成予想図
MODEL HOUSENO.06
3LDK+WIC+SC+FC
■1階床面積/58.9㎡■2階床面積/52.95㎡※ポーチ・バルコニー面積含む

1吹抜けリビング
たっぷりの自然光が降り注ぐ開放感たっぷりの吹き抜けリビング。18.9帖の大型空間を実現しました。
2ファミリークローク
衣類だけでなくアウトドアグッズなど、家族の物の収納に便利なファミリークローク。
3シューズクローク
こどもの長靴やゴルフバックも楽々収納できる大容量のシューズクローク。

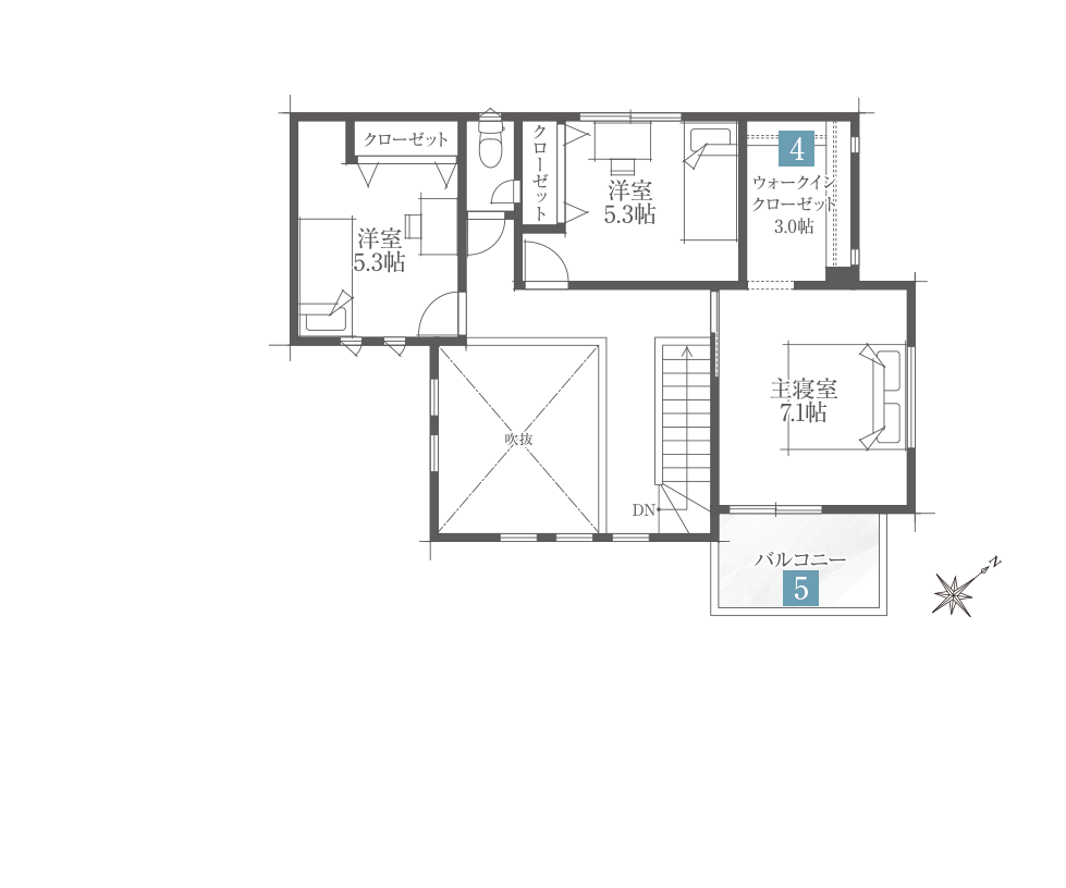
4ウォークインクローゼット
ご夫婦の衣類だけでなく家族のものの収納に便利なウォークインクローゼット。
5バルコニー
主寝室から出入りできる大きなバルコニー。