

建てる過程を見える形で残す
確かな安心をつくる
創建独自の品質管理システム
確かな安全、目に見える安心。
お客様の暮らしを守る施工品質を追求。
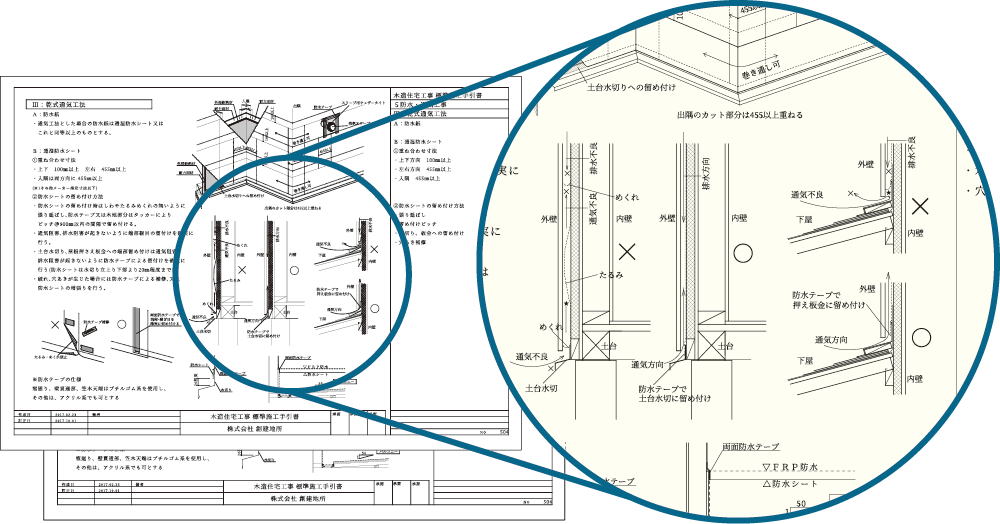
品質のばらつきをなくす創建の施工マニュアル
創建では自社の施工基準を『標準施工手引書』としてまとめ、設計・現場管理のスタッフはもちろん、施工担当のスタッフと常に共有しています。施工の手順や許容範囲を図解化して明確に表記しているので、施工管理者や職人の経験やスキルに関わらず、全員が統一した見解を基に判断をすることができます。これによりすべての住まいにおいてばらつきの無い高い施工品質を担保しています。

標準施工手引書で
定められている項目例
- 基礎工事建物配置、防湿シート、鉄筋工事、アンカーボルト、コンクリート他
- 土台工事土台、アンカーボルト、大引・床束他
- 軸組工事柱・間柱、床合板、筋交い耐力壁、構造金物、防腐・防蟻、軒天他
- 造作工事壁ボード下地、天井ボード下地、手摺・棚高さ、設備機器下地他
- 防水・通気工事屋根ルーフィング、バルコニー防水、乾式通気工法、通気胴縁
- 断熱工事基礎断熱、床下断熱、壁断熱(外断熱)、外気に接する床、屋根断熱、天井断熱他
- その他工事給排水衛生、ガス設備工事、換気工事、電気工事、養生・清掃、安全対策他
品質基準を定める
重要性って?
施工基準を自社で定めていない建築会社が多くあることをご存知でしょうか?「建築基準法」という法律があることは一般的に知られていますが、最低基準を定めているに過ぎません。それは家づくりの工程全体における判断領域のわずか9%程度でしかなく、50%以
上は現場監督や職人の人的裁量にゆだねられた指針のない領域になっています。創建では法令等で決められていないグレーな領域にも厳しい自社基準を設け、統一された住宅品質を実現するとともに、施工品質の向上に日々取り組んでいます。

※認定現場鑑定士100名に対するアンケート調査データ
より正確な施工のために行う精密な施工チェック
法令や制度で定められているよりも多くのタイミングで、300項目以上の検査を実施し細部まで確認します。不具合や監査基準に満たない箇所が見つかれば改善するまで次の工程に進みません。










第三者機関による客観的な
検査で安全をより確実に。

構造検査
創建の住まいは基本構造体の不具合を10年間保証する住宅瑕疵保険を導入しています。保険加入にあたり建築中に保証会社の検査員が現場検査を実施します。

地盤調査
地下約10mまで計測できるスクリューウエイト貫入試験による地盤調査を行い、将来的にも住まいを支えられる地盤であるかを診断します。調査結果に基づき改良や補強を行い、万がーに備えた20年間の地盤保証も実施しています。
お引き渡しの後も必要な時に確認できる情報の見える化
施工現場では監査内容、各工程の施工写真などをクラウドシステムで共有・連携しています。監査時に撮影した200枚以上もの画像は「現場監査記録書』として1冊にまとめ、お引き渡しの際にお客様にお渡ししています。
現場監査記録書基礎から完成までの各建築工程を細部まで撮影。複雑でわかりにくい構造を写真で見える化し、品質管理・施工技術の高さを実感していただくことで、より確かな安心をお届けしています。


GALLERY
創建の施工事例
沢山の事例をご覧いただけます
FREE PLAN
自由設計
吹抜けを活かした幅広いデザイン
QUALITY
外断熱・構造
冷暖房60%削減・地震にも強い
SPECIAL CONTENTS
スペシャルコンテンツ
住まいに関する耳よりな情報


















