LANDPLAN & MODELHOUSE区画図・モデルハウス

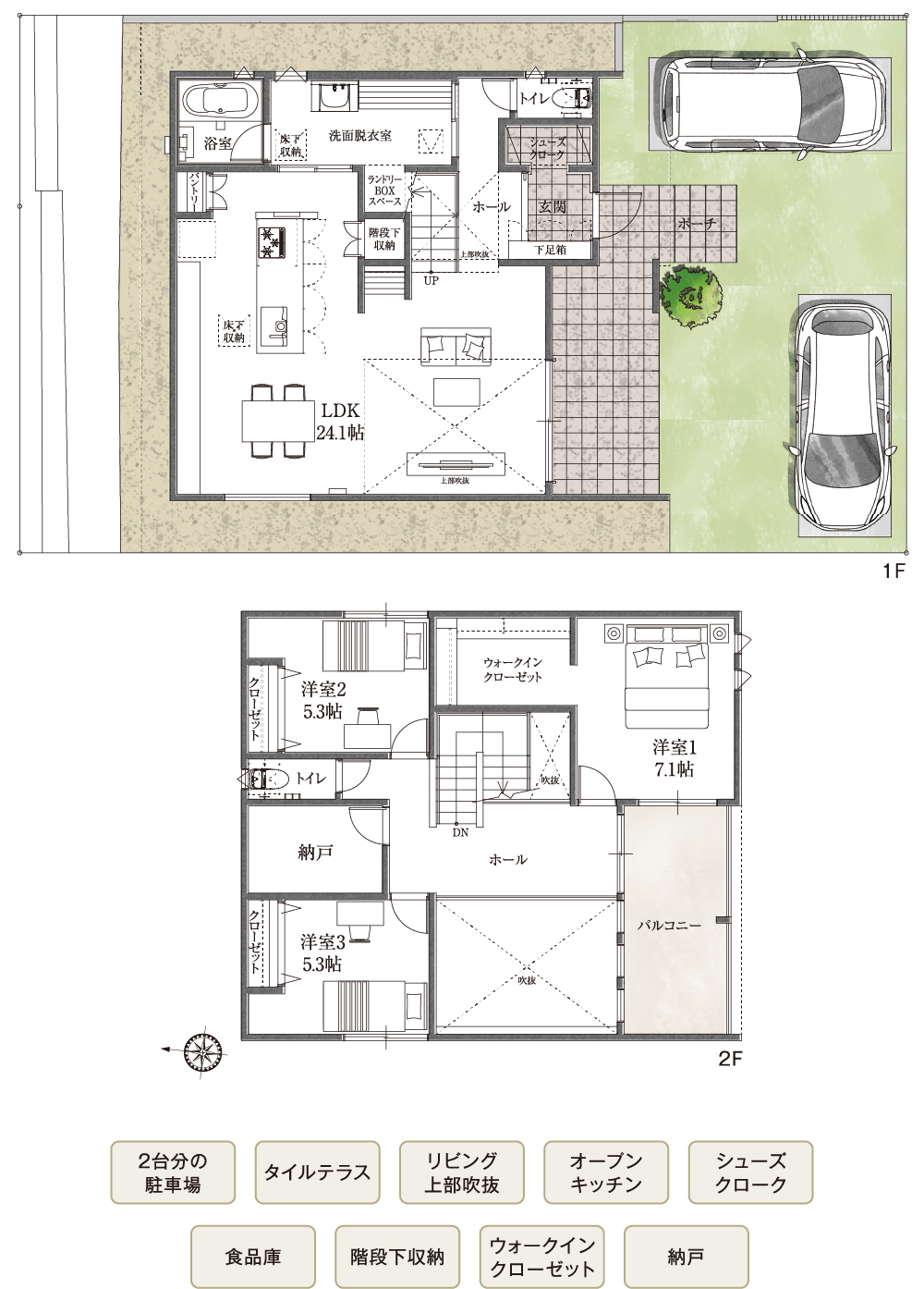
No.35 3LDK +シューズクローク+納戸+ウォークインクローゼットNo.35 3LDK +シューズクローク+納戸+ウォークインクローゼット

広々24帖のリビングと豊富な収納スペースが特徴的で、スタイリッシュな外観デザインを採用したプラン。

間取り図間取り図
リビング上部吹抜
リビング上部吹抜
洗面脱衣室

※上記図面は設計図面をもとに描き起こしたもので、実際とは異なる場合があります。また行政指導、施工の都合および改良のため、一部変更となる場合があります。その場合は現況優先となります。
※車はイメージです。
※植栽は成長したイメージのものです。
※掲載の外観完成予想CGはイメージ図につき実物の外観及び外構、形状・色等は実際とは異なる場合があります。あらかじめご了承ください。

OTHER MODEL HOUSE

  • No.34
  • No.36
  • No.37
  • No.38
  • No.39

お問い合わせは「ルナシティ千城台」まで

0120-671-172

営業時間/10:00〜18:00 年中無休(年末年始除く)
※携帯電話・PHSからも通話できます。

資料請求はこちら 来場予約はこちら

もっと知ってほしい、創建のすまい

GALLERY
創建のすまい“イロイロ”コンテンツ創建のすまい“イロイロ”コンテンツ